Endlich Wurzeln schlagen –
im nyoo garden der Heimat
Einmal grün, immer grün: Das Kempener Projekt nyoo garden wird in drei Bauabschnitten auf dem ehemaligen Gelände einer alten Gärtnerei entwickelt – und dank der angelegten Gemeinschaftsflächen und kleinen Gärten bewahrt es auch künftig seine grüne Seele.
Hier können Singles, Paare, Best Ager und Familien in Eigentumswohnungen, Reihen- oder Doppelhäusern genau das Zuhause finden, das ihren Ansprüchen nach einem modernen, komfortablen Leben in einem der schönsten niederrheinischen Städtchen gerecht wird.
Lage
Hello Hometown.
Kempen gilt zurecht als eines der schönsten Städtchen am Niederrhein: Schlendern Sie durch die mittelalterliche Altstadt, genießen Sie kulinarische Angebote rund um den Marktplatz und schließen Sie auf den Stadtfesten neue Bekanntschaften.
Oder Sie nutzen das umfassende Sport- und Freizeitangebot Ihrer neuen Heimatstadt:
Reitbegeisterte kommen in den vielen umliegenden Reiterhöfen auf ihre Kosten, die flache Landschaft ist von zahlreichen Fahrrad- und Wanderwegen durchzogen und am nahen Königshüttensee können Sie ausgiebig segeln, surfen, angeln und tauchen.
Karte
Quartier
Gestatten: nyoo garden.
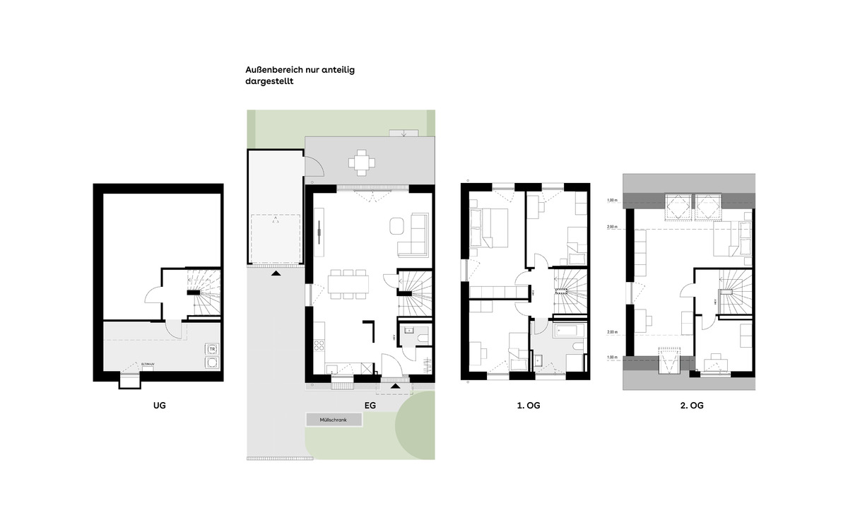
Das Quartier wird in drei Bauabschnitten entwickelt, wobei bereits mit der ersten Bauphase alle unterschiedlichen Wohntypen fertiggestellt werden. Der 1. Bauabschnitt umfasst ein Mehrfamilienhaus mit 24 Wohneinheiten, acht Reihenhäuser und vier Doppelhaushälften samt 44 oberirdischer Stellplätze. Auch die gemeinschaftlich genutzten Aufenthaltsflächen werden schon angelegt, sodass Sie mit Ihrem Einzug den umfassenden Quartierskomfort genießen können.
Home and happiness.
Ob kompaktes Zuhause, gemütliche Wohnungen oder großzügige Familiennester – in den Mehrfamilienhäusern finden Eigennutzer und Kapitalanleger genau die passende Eigentumswohnung.
Highlights
Zusätzlich zur degressiven Abschreibung sind all unsere Eigentumswohnungen auch Sonder-AfA-fähig
Effizienzhaus 40, Mehrfamilienhäuser mit angestrebter QNG-Zertifizierung durch Fernwärme, Photovoltaik, begrünte Dächer und Außenbereiche für mehr Biodiversität.
Generationen
Hoher Wohnkomfort und autofreies Quartier mit Spielplätzen, Grünflächen und privaten Rückzugsmöglichkeiten.
Zusätzlich zur degressiven Abschreibung sind all unsere Eigentumswohnungen auch Sonder-AfA-fähig
Effizienzhaus 40, Mehrfamilienhäuser mit angestrebter QNG-Zertifizierung durch Fernwärme, Photovoltaik, begrünte Dächer und Außenbereiche für mehr Biodiversität.
Generationen
Hoher Wohnkomfort und autofreies Quartier mit Spielplätzen, Grünflächen und privaten Rückzugsmöglichkeiten.