Living at the 6-lake plateau in Duisburg-Wedau
Close to nature, comfortable and with a sense of community - nyoo berry is setting new standards in the new garden city on the 6-lake plateau of Duisburg-Wedau. With 14 townhouses and 87 barrier-free privately owned apartments, it offers a varied mix of housing. Energy-efficient construction and excellent connections to the metropolitan region.
Location
Map
Quarter
Head and stomach in harmony
From its idyllic surroundings to its inner values, nyoo berry shines in the greenest colours. It meets strict sustainability criteria that benefit the environment, the climate and people.
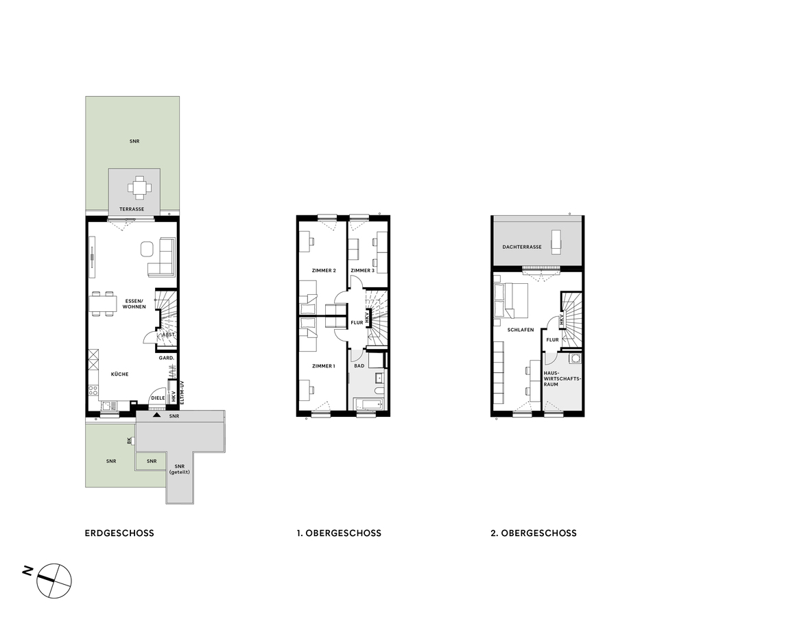
Apartment type: Perfect fit
An apartment where you feel at home focuses on your needs and wishes and is designed to perfectly suit your lifestyle. Thanks to a wide range of apartment types and smart floor plans, families, couples, singles and seniors will find their perfect home at nyoo berry.
In addition to declining balance depreciation, all our apartments are also eligible for special depreciation allowances.
The only project in the neighbourhood
The label recognises neighbourhoods that set new standards in climate protection and social cohesion.
In addition to declining balance depreciation, all our apartments are also eligible for special depreciation allowances.
The only project in the neighbourhood
The label recognises neighbourhoods that set new standards in climate protection and social cohesion.